
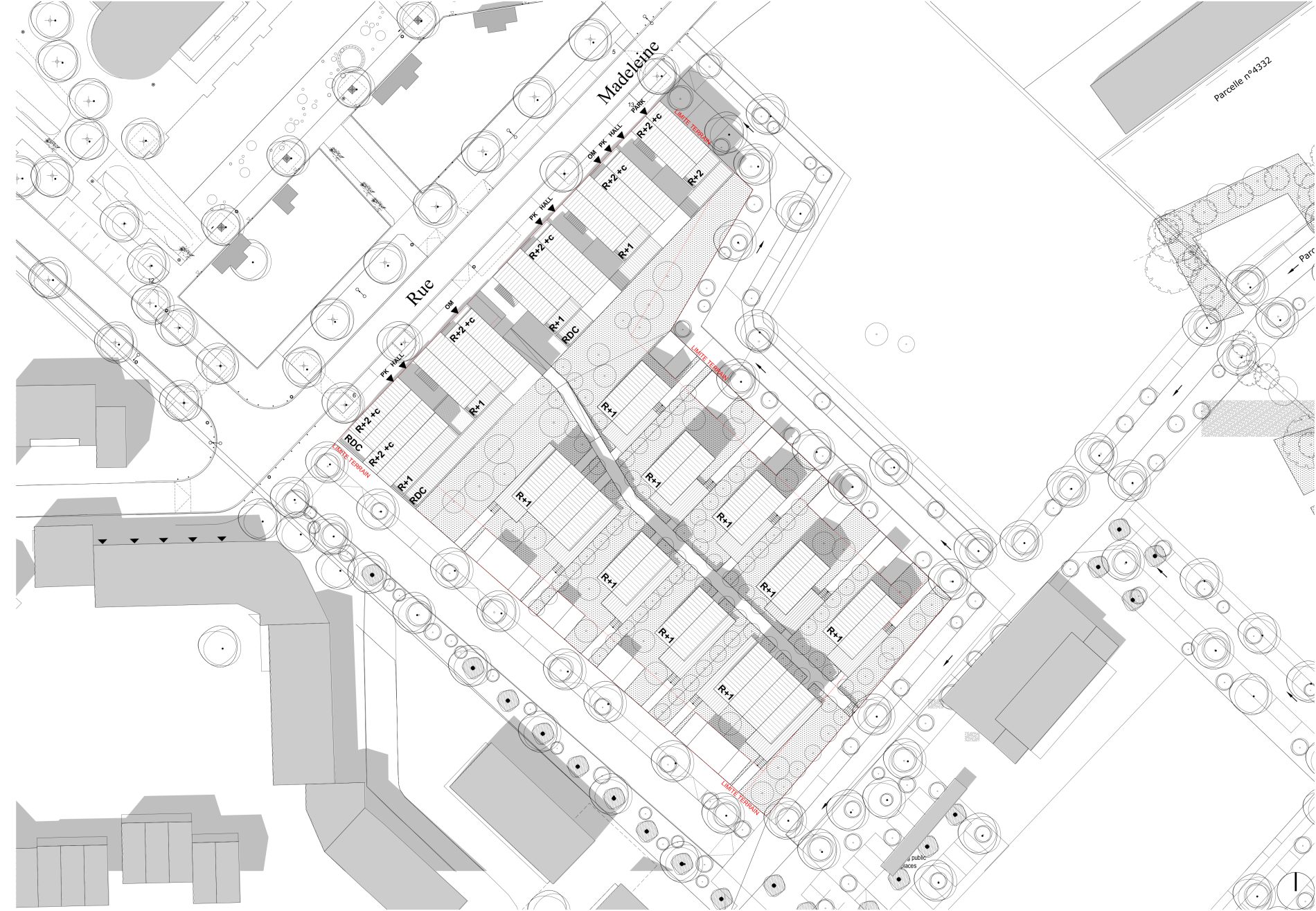
19 logements intermédiaires et 11 logements individuels
détail
pour Association Foncière Logement
détail
Étude réalisée dans le cadre de l’accord-cadre d’étude de capacité, faisabilité et réalisation de cahiers de prescriptions conclu avec AFL.
Maitre d’ouvrage
ASSOCIATION FONCIÈRE LOGEMENT (AFL)
Situation
Le Havre (76)
QPV Centre ancien - Quartier sud
Programme
SP 2 511 m² / SHAB 2 458 m²
Réalisation
Étude de faisabilité > 10-2025
Montant des travaux
/ € HT
Performance énergétique et certification
RE 2020
Équipe de maitrise d’œuvre
K-HUT. Architectes


