
Réhabilitation d’une maison de montagne
Valdeblore (06)
détail
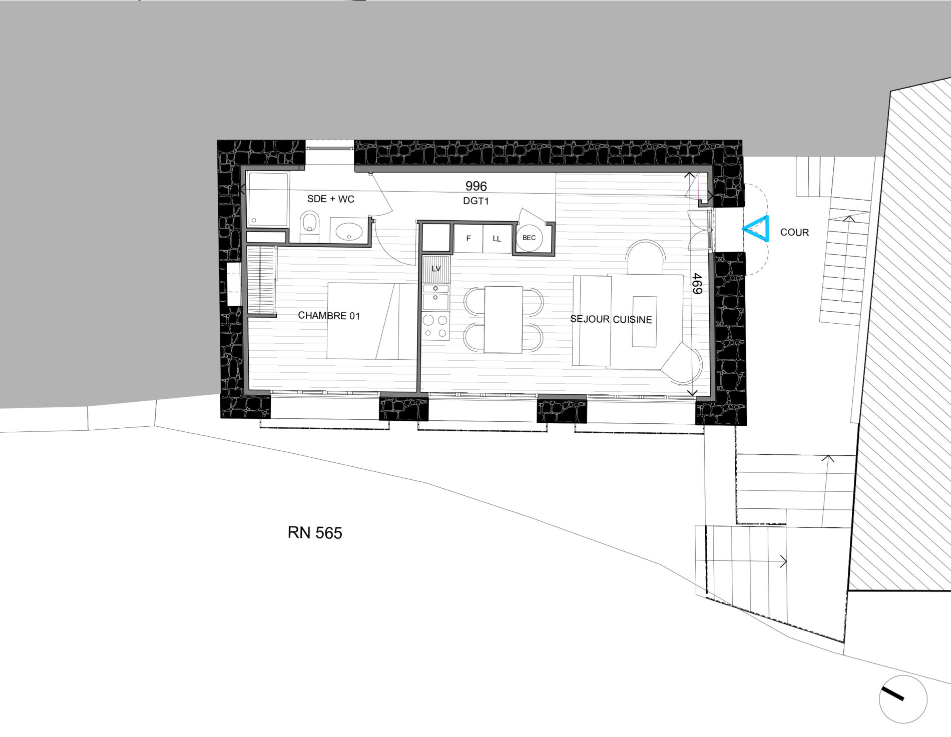
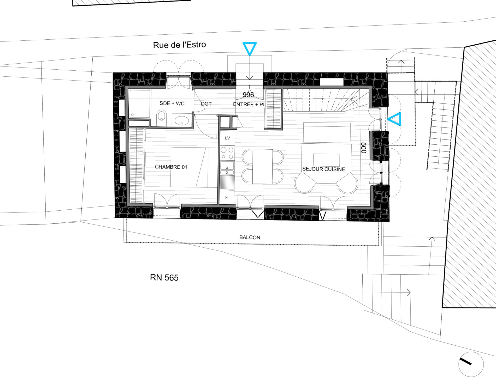
Demeure de village accrochée à flanc de falaise, au cœur du lieu-dit « La Roche », la maison, de trois niveaux et combles non aménagés, est aujourd’hui occupée à rez-de-chaussée par deux garages clos, au premier niveau par un logement type 2 accessible par une courette latérale, au second niveau par un logement type 4 accessible par la rue arrière
détail
Le projet consiste en la transformation complète de l’aménagement intérieur des deux logements et des combles qu’il s’est agit de rendre habitables, ainsi que la rénovation de la courette.
Avant transformation, chaque niveau était accessible par des voies différentes. Passer d’un niveau à l’autre nécessitait donc de faire tout le tour de l’ilot. Mettant en communication les deux logements mais aussi les deux voies d’accès (rue de l’Estro au nord et RN565), un escalier extérieur métallique créé dans la courette Ouest de la maison facilite maintenant ces transitions et permet d’éviter le détour.
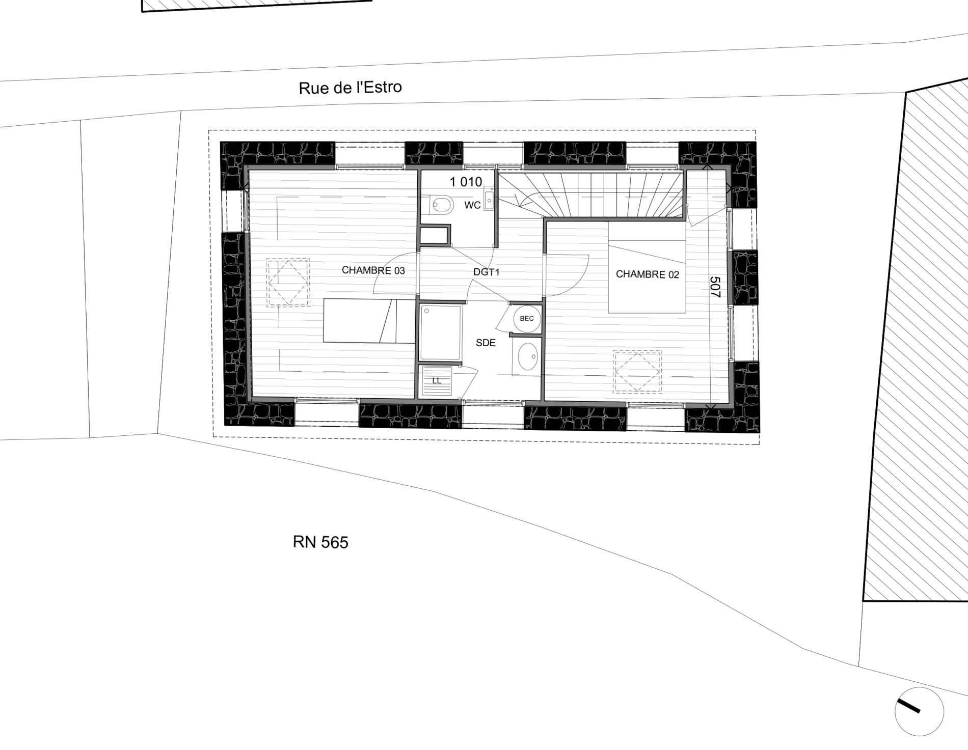
Le principe de découpage en deux logements indépendants est conservé. Le Type 2 du R+1 demeure un logement de même type tandis que le logement 3 pièces du R+2 devient un quatre pièces par l’aménagement des combles.
Pour ce faire, le plancher haut du R+2 est abaissé et les charpentes modifiées afin de pouvoir aménager au niveau supérieur un espace nuit constitué de deux chambres, d’une salle d’eau et d’un cabinet d’aisances.
Ce logement, initialement de trois pièces, devient un type 4 dont l’espace jour, situé à l’étage noble de la maison, profite d’un balcon filant orienté Sud-Ouest, ouvert vers l’ubac des monts voisins.
Maitre d’ouvrage
XX
Situation
XX
Programme
Logements: SP 0000 m² / SHAB 0000 m²
Réalisation
Concours Lauréat > 09-2025 / Dépôt DPC > 02-2024
Montant des travaux
0 000 000 € HT
Performance énergétique et certification
RE 2020
Équipe de maitrise d’œuvre
K-HUT













